トップページ > 新潟市秋葉区福島 新潟市秋葉区福島ⅡB棟

新潟市秋葉区福島ⅡB棟

新潟市秋葉区福島

秋葉区福島ⅡB棟正面 外観写真

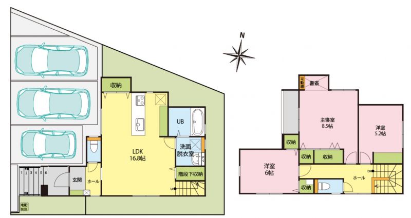
秋葉区福島B棟 1階/2階 平面図

秋葉区福島ⅡB棟 駐車スペースは3台停められます

  • 見学予約
  • 資料請求
  • お気に入りリストを見る
  • 物件情報を印刷する
  • プリンタの設定で「背景を印刷する」と設定しないと「背景画像」が印刷されないことがあります。印刷の際には、必ず「背景を印刷する」設定にしてください。
来店予約キャンペーン

この物件の支払例

販売価格 2,975万円
月々支払 72,375 頭金0円 / ボーナス払い0円/金利0.795%/40年支払い
建物面積 95.92㎡(29.01坪)
土地面積 131.91㎡(39.9坪)
  • 3LDK

この物件の詳細について、お気軽にお問い合わせください

  • 見学予約
  • 資料請求
  • お電話でのお問い合わせは

地図・交通

所在地 新潟市秋葉区福島203付近 新潟市秋葉区福島ⅡB棟
最寄駅 JR信越本線 荻川駅 徒歩分数 15分
最寄バス停 徒歩分数
小学校校区 結小学校 中学校校区 新津第二中学校

※学校区は住所から自動判定したものであり、保証できる情報ではございません。正確な学校区はお問い合わせ下さい。

お問い合わせフォームはこちら

※地図上の「対象地」は実際の場所ではない場合がございます。詳しくはお問い合わせください。

お問い合わせフォームはこちら

設備・仕様画像

  • トスケンホームは4つの最高クラスの性能を持っています。
  • BB(ブローボックス)空調システムを採用。家全体を高い気密性と高性能な断熱材で囲んだ一つの断熱層とし、上下階と各空間を最小限のダクトでつなぐことによって、家中の空気を均一に循環させることに成功。
  • 1階の洗面脱衣室 2帖分の広さがあります
  • 従来の建売住宅より半帖分広いバスルーム
  • 2階の6帖の広さの洋室
  • 2階の8.5帖分の広さの主寝室
  • 2階の8.5帖の広さの主寝室
  • 2階の5.2帖の広さの洋室
  • 1階の玄関スペース

周辺環境

  • イオニアミストというウイルスや細菌などを不活性化させる光触媒コーティングを住宅の壁面に施工してあります。
  • 高い気密性と断熱性、静かな住空間を守る吸音性能、さらに換気システムの効率化を実現、一次エネルギー消費量の削減。

この物件の詳細について、お気軽にお問い合わせください

  • 見学予約
  • 資料請求

物件概要

種目 新築一戸建住宅
間取り 3LDK 間取り内訳
土地面積 131.91㎡ 私道面積
建物面積 95.92㎡ 建物構造規模 木造 2階建
築年月(竣工月) 2025年04月 駐車場
建ぺい率/容積率 60%/200% 都市計画 市街化区域
接道状況 西16m 公道 位置指定無   
地目 宅地
土地権利 所有権 地勢
用途地域 第一種住居地域
現況 完成済 取引態様 売主

取引条件等

引渡し 期日指定 2025年4月下旬

その他

設備 温水洗浄便座、トイレ2ヶ所、浴室乾燥機、システムキッチン、IHクッキングヒーター、浄水器、食器洗浄乾燥機、ウォークインクローゼット、床下収納、洗髪洗面化粧台、照明器具、電気、上水道、下水道、複層ガラス、エアコン、インターネット、24時間セキュリティー、駐車場3台分、カーポート付
特徴 日当り良好、バリアフリー、オール電化、24時間換気システム
諸条件・相談
情報登録日 2024年12月3日 情報更新予定日 2025年11月14日
物件番号 628
建築確認番号 NK第24本01707号
  • 見学予約
  • 資料請求
  • お気に入りリストを見る
  • 物件情報を印刷する
  • プリンタの設定で「背景を印刷する」と設定しないと「背景画像」が印刷されないことがあります。印刷の際には、必ず「背景を印刷する」設定にしてください。

見学予約・資料請求フォーム

初めて予約来場でギフト券5,000円分 ローン事前審査でギフト券5,000円分 最大10,000円分のギフト券をプレゼント

※ご注意ください※
「資料請求」を行う場合、お住まいのご住所を必ずご入力の上、お進みください。
「見学予約」を行う場合、ご連絡のつくお電話番号を必ずご入力の上、お進みください。
確認ができない場合、「資料請求」「見学予約」がお受けできない場合がございます。あらかじめご了承ください。

ご依頼内容
お名前


(全角)


(全角)

ふりがな

せい
(ひらがな)

めい
(ひらがな)

住所
郵便番号(ハイフン不要) (半角数字)
都道府県 市区町村
町域以下
※建物名・部屋番号までご記入下さい。
見学希望日
見学希望時刻
電話番号(ハイフン不要) (半角数字)
メールアドレス
(半角英数字)
ご質問・ご検討内容等 (最大220文字まで)
個人情報の保護について
※当フォームのご利用にあたっては、「個人情報保護方針」にご同意いただく必要があります。ご同意いただける場合は、上記の「同意する」にチェックをつけたうえでご利用ください。

  • お近くのモデルハウスを探す!建売情報はこちら
  • まずはお家でゆっくり知りたい!カタログ・資料請求